Chưa được giao đất, Công ty TNHH Thành Dương vẫn thi công dự án tại huyện Tiên Yên
Mặc dù chưa giải phóng xong mặt bằng, chưa được cơ quan chức năng có thẩm quyền giao đất nhưng Công ty TNHH Thành Dương chủ đầu tư Dự án khu dân cư dịch vụ phía Bắc thị trấn Tiên Yên, huyện Tiên Yên đã tiến hành san gạt mặt bằng với diện tích gần 10ha.
Quảng Ninh: Bé gái 2 ngày tuổi bị bỏ rơi cùng tờ giấy nhờ người cưu mang
Công bố quyết định chuẩn y ông Cao Tường Huy làm Chủ tịch UBND tỉnh Quảng Ninh
Quảng Ninh: Đã tìm thấy thi thể công nhân mất tích trong vụ sạt lở tầng khai thác than
Được biết, dự án khu dân cư và dịch vụ phía Bắc thị trấn Tiên Yên, huyện Tiên Yên, tỉnh Quảng Ninh được UBND tỉnh Quảng Ninh chấp thuận chủ trương đầu tư tại Quyết định số 4783/QĐ-UBND ngày 20/10/2018 do ông Nguyễn Đức Long, nguyên Chủ tịch UBND tỉnh Quảng Ninh ký.
Việc thực hiện dự án này với mục tiêu đầu tư hạ tầng kỹ thuật, tạo quỹ đất đáp ứng nhu cầu nhà ở cho nhân dân khu vực huyện Tiên Yên. Đồng thời góp phần chỉnh trang đô thị huyện Tiên Yên.
Dự án được phê duyệt vào tháng 4/2019, Công ty TNHH Thành Dương là nhà đầu tư duy nhất trúng sơ tuyển.
Theo Quyết định số 1657/QĐ-UBND ngày 23/4/2019 của UBND tỉnh Quảng Ninh phê duyệt kế hoạch lựa chọn nhà đầu tư thực hiện Dự án thì hình thức lựa chọn nhà đầu tư là chỉ định thầu.

Phối cảnh dự án khu dân cư dịch vụ phía Bắc thị trấn Tiên Yên, huyện Tiên Yên tỉnh Quảng Ninh do Công ty TNHH Thành Dương làm chủ đầu tư.
Đến tháng 7/2020, Phó chủ tịch UBND tỉnh Quảng Ninh lúc bấy giờ là ông Cao Tường Huy (hiện đang là Chủ tịch UBND tỉnh Quảng Ninh) đã ký Quyết định phê duyệt kết quả lựa chọn nhà đầu tư thực hiện Dự án cho Công ty TNHH Thành Dương trúng thầu với thời gian thực hiện Dự án là 16 tháng (tính từ thời điểm hợp đồng có hiệu lực đến thời điểm các bên hoàn thành nghĩa vụ theo hợp đồng). Thời gian hoạt động của Dự án là 5 năm kể từ thời điểm hợp đồng có hiệu lực.
Đây là dự án đầu tư có sử dụng đất với tổng diện tích đất sử dụng 234.620 m2, dự toán chi phí bồi thường giải phóng mặt bằng là 45 tỷ đồng. Tổng chi phí thực hiện Dự án dự kiến là 186 tỷ đồng.

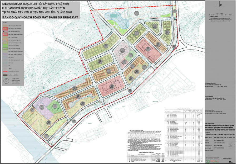
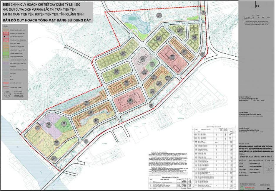
Quy hoạch chi tiết xây dựng theo tỉ lê 1/500 của dự án khu dân cư dịch vụ phía Bắc thị trấn Tiên Yên.
Sau khi được UBND tỉnh Quảng Ninh chấp thuận chủ trương đầu tư vào đầu tháng 8/2020 UBND huyện Tiên Yên (tỉnh Quảng Ninh) đã tiến hành công bố kết quả lựa chọn nhà đầu tư thực hiện Dự án Khu dân cư và dịch vụ phía Bắc thị trấn Tiên Yên, huyện Tiên Yên.
Tuy nhiên, phản ánh đến Báo Pháp luật Việt Nam, một số cử tri tại huyện Tiên Yên cho biết, mặc dù chưa giải phóng xong mặt bằng vì còn nhiều hộ dân chưa đồng thuận việc bồi thường hỗ trợ tái định cư trong việc thu hồi đất để thực hiện dự án, nhưng chủ đầu tư là Công ty TNHH Thành Dương đã ngang nhiên thi công san gạt mặt để tiến hành thực hiện dự án nhưng chưa được xử lý dứt điểm.


Hiện trạng nhiều quả đồi nằm bên trong dự án này đã bị Công ty TNHH Thành Dương tiến hành múc đất san lấp khi chưa giải phóng xong mặt bằng.
Cụ thể vào khoảng cuối năm 2022 đến tháng 4 năm 2023, Công ty TNHH Thành Dương đã tiến hành cho máy móc, công nhân tiến hành thi công san gạt mặt bằng với diện tích hơn 10h trên tổng số 23ha để thực hiện dự án bất chấp việc chủ đầu tư chưa được cơ quan có thẩm quyền tiến hành giao đất cũng như chưa được các cơ quan chức năng cấp giấy phép xây dựng.
Điều đáng nói mặc dù Công ty TNHH Thành Dương tiến hành thi công suốt một thời gian nhưng UBND thị trấn Tiên Yên cũng như UBND huyện Tiên Yên lại xử lý theo kiểu đánh trống bỏ dùi khi lập biên bản mà không ra quyết định xử phạt vi phạm hành chính.
Theo quan sát và ghi nhận của phóng viên Báo Pháp luật Việt Nam, hiện tại một nửa dự án này đã được chủ đầu tư tiến hành san gạt, hạ gần 1 quả đồi ngay lối vào cổng dự án để san lấp xuống chỗ thấp, chỗ trũng. Ở tại dự án hiện nay vẫn có máy xúc và công nhân ở trong lán trông coi và bảo vệ.



Gần 10ha mặt bằng dự án đã bị Công ty TNHH Thành Dương tiến hành san gạt tạo mặt bằng để phục vụ tiến độ dự án bất chấp việc chưa được cơ quan chức năng giao đất.
Tìm hiểu của phóng viên Báo Pháp luật Việt Nam được biết, Chủ đầu tư dự án khu dân cư và dịch vụ phía Bắc thị trấn Tiên Yên là Công ty TNHH Thành Dương đang tiến hành làm thủ tục điều chỉnh và gia hạn thời gian thực hiện dự án bởi thời gian thực hiện Dự án là 16 tháng (tính từ thời điểm hợp đồng có hiệu lực đến thời điểm các bên hoàn thành nghĩa vụ theo hợp đồng) nhưng chưa được chấp thuận.
Liên quan đến sự việc này, nhóm phóng viên báo Pháp luật Việt Nam đã có buổi làm việc với ông Nguyễn Văn Nhanh, Chủ tịch UBND thị trấn Tiên Yên, ông Nhanh cho biết,: “Dự án Khu dân cư và dịch vụ phía Bắc được UBND tỉnh Quảng Ninh ra quyết định chấp thuận chủ trương đầu tư, sau đó UBND huyện Tiên Yên được ủy quyền tổ chức thực hiện đấu thầu lựa chọn nhà đầu tư.
Sau khi lựa chọn được nhà đầu tư thì UBND huyện Tiên Yên chỉ đạo các Phòng ban thành lập các tổ kiểm đếm, giải phóng mặt bằng, hiện nay đã giải phóng được 60 hộ dân với diện tích 13,6 ha trên tổng thể 23 ha. Còn gần 10ha chưa giải phóng được mặt bằng do người dân chưa đồng thuận”.

Trụ sở UBND thị trấn Tiên Yên.
Trước câu hỏi của phóng viên về việc chủ đầu tư dự án này là Công ty TNHH Thành Dương tiến hành thi công san gạt mặt bằng vào cuối năm 2022 đầu năm 2023 có đúng quy định hay không?
Chủ tịch UBND thị trấn Tiên Yên cho biết: “Công ty TNHH Thành Dương đã cho máy móc vào để thi công công trình lấy đất từ chỗ cao san gạt xuống chỗ trũng, chứ nếu Công ty TNHH Thành Dương mà không làm thì cũng khó cho việc thu hồi bồi thường giải phóng mặt bằng bởi người dân họ không tin.
Ngay khi phát hiện sự việc, tôi đã chỉ đạo đồng chí phó chủ tịch phụ trách mảng kinh tế và địa chính có ra hiện trường kiểm tra, lập biên bản và yêu cầu Công ty Thành Dương dừng thi công rồi...Sau đó đồng chí phó Chủ tịch đã điện thoại cho đồng chí Phương, Phó chủ tịch UBND huyện Tiên Yên xin ý kiến và được chỉ đạo nhắc nhở phía công ty thôi...”.
Khi phóng viên đề nghị được cung cấp biên bản thiết lập hành vi vi phạm hành chính của Công ty TNHH Thành Dương khi thực hiện dự án này thì người đứng đầu chính quyền thị trấn Tiên Yên lại cho rằng: “ Hôm đó đồng chí phó chủ tịch thị trấn và cán bộ địa chính đi kiểm tra về báo lại sự việc chứ không lập biên bản gì cả.
Sau khi nắm được sự việc thì tôi đã yêu cầu cho dừng thi công, đồng thời điện thoại lên báo cáo cho ông Vi Quốc Phương – Phó Chủ tịch UBND huyện phụ trách dự án này để báo cáo và xin ý kiến và được chỉ đạo yêu cầu dừng thi công. Sau đó tôi cũng điện chỉ đạo chỗ công ty Thành Dương tạm thời dừng thi công chứ không có thông báo hay xử phạt gì cả...”
Ở một diễn biến khác, trao đổi với phóng viên, một người đàn ông tự giới thiệu tên là Đăng hiện đang giữ Phó giám đốc Công ty TNHH Thành Dương cho biết: “Thời gian thực hiện dự án là 5 năm, đến giờ thời gian thực hiện của dự án cũng chưa hết thế nhưng còn liên quan đến các thủ tục chưa được hoàn thiện nên chúng tôi phải làm hồ sơ gia hạn điều chỉnh thêm thời gian và điều chỉnh quy hoạch.
Sau khi hoàn thành các thủ tục thì khi được giao đất, chúng tôi mới xin được giấy phép xây dựng. Còn hiện tại thì vẫn đang vướng vào công tác giải phóng mặt bằng.
Trước đó vào năm ngoái khi chúng tôi cho máy móc vào san gạt một phần đất đã được giải phóng và được đền bù tránh tình trạng người dân tái sử dụng lấn chiếm thì chúng tôi cũng đã bị UBND Huyện Tiên Yên yêu cầu tạm dừng và lập biên bản rồi..”.
Như vậy, đến đây dư luận có quyền đặt câu hỏi UBND huyện Tiên Yên có giơ cao đánh khẽ cho Công ty TNHH Thành Dương tiến hành thi công san gạt mặt bằng dự án bất chấp việc chưa hoàn thiện thủ tục, chưa được giao đất vẫn ngang nhiên thi công?
Điều đáng nói là Công ty TNHH Thành Dương đã san gạt gần 10ha của dự án nhưng lại không bị xử phạt hành vi vi phạm hành chính hay Quyết định yêu cầu biện pháp khắc phục hậu quả từ chính quyền huyện Tiên Yên?
Báo Pháp luật Việt Nam đề nghị UBND tỉnh Quảng Ninh giao các cơ quan chuyên môn nhanh chóng vào thanh kiểm tra lại quá trình thực hiện dự án này.
Đồng thời làm rõ năng lực tài chính và năng lực kinh nghiệm của Công ty TNHH Thành Dương.
Báo Pháp luật Việt Nam sẽ tiếp tục thông tin.

